Obiekt 7 mieszkań w Ustroniu z gotowym PnB
Ustroń Pokaż na mapie ›
Odświeżone: Piątek, 27 Marzec, 2026 08:14
849 000 zł
Szczegóły ogłoszenia
- Kategoria: Biura i lokale / Sprzedaż
- Przeznaczenie:Inne przeznaczenie
- Powierzchnia:451 m2
- Sprzedaż:Pośrednik
- Cena: 849 000 zł
Opis oferty
SEBASTIAN WIŚNIOWSKIAgent prowadzący
572 - pokaż numer telefonu -
Obiekt inwestycyjny z PRAWOMOCNYM POZWOLENIEM NA BUDOWĘ 7 mieszkań /
możliwość rozbudowy do 9 apartamentów Ustroń Lipowiec
Na sprzedaż budynek inwestycyjny o powierzchni użytkowej 451 m²,
zlokalizowany w Ustroniu, w dzielnicy Lipowiec, posadowiony na
działce nr 392/3 o powierzchni 1075 m².
Nieruchomość posiada prawomocne pozwolenie na budowę decyzja nr 754
z dnia 25.09, projekt przebudowy obiektu na 7 apartamentów oraz
aktualną decyzję o warunkach zabudowy.
Dodatkowo istnieje możliwość zmiany projektu i wygospodarowania
kolejnych dwóch apartamentów (ok. 144 m² PUM) poprzez rezygnację
lub adaptację części garażowej co pozwala zwiększyć łączną
liczbę mieszkań do 9 lokali i znacząco podnieść potencjał
inwestycyjny.
Informacje o budynku
rok budowy: 1980
pierwotna funkcja: kulturalno-oświatowa
wydane WZ na zmianę przeznaczenia pod funkcję mieszkaniową
konstrukcja: cegła + pustak
dach: nowy
powierzchnia zabudowy: 373 m²
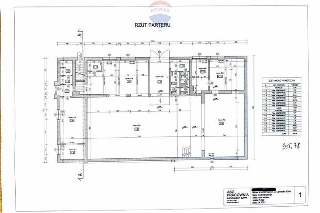
aktualny układ:
parter: 316 m²
piętro: 135 m²
część budynku bez stropu (sala o dużej wysokości idealna pod
adaptację)
Media
prąd doprowadzony do budynku
gaz w granicy działki decyzja o warunkach przyłączeniowych (2022
r.)
woda w granicy działki decyzja o warunkach przyłączeniowych (2022
r.)
działka nieobjęta MPZP
Projekt:
Gotowy projekt przewiduje:
7 mieszkań o metrażach od 32 m² do 55 m²
(łącznie 305,36 m² PUM)
garaż z 7 miejscami postojowymi
łączna powierzchnia wraz z komunikacją, garażami i komórkami
lokatorskimi: 633,36 m²
(70 m² stanowi komunikacja)
Możliwość modyfikacji projektu i uzyskania 9 lokali dzięki
wykorzystaniu przestrzeni garażu (144 m² PUM).
Atuty inwestycji:
PRAWOMOCNE POZWOLENIE NA BUDOWĘ przyspiesza realizację inwestycji
Wysoki potencjał dochodowy idealne pod sprzedaż lub najem (krótko-
i długoterminowy)
Doskonała lokalizacja w turystycznym kurorcie
Brak MPZP większa elastyczność projektowa
Dostęp do szlaków górskich, wyciągów, uzdrowiska i centrum
Ustronia (ok. 10 minut)
Cena: 899 000 PLN / brutto
Sprzedający nie wystawia faktury VAT (osoba prywatna).
Kupujący nie płaci prowizji.
Agent nieruchomości zainteresowany tą ofertą dla swojego klienta
proszony jest o kontakt. Chętnie uzgodnimy warunki współpracy z
RE/MAX przy sprzedaży.
Nota prawna: Informacje dotyczące opisu nieruchomości podane są
przez właściciela, mają charakter wyłącznie informacyjny i mogą
podlegać aktualizacji. Oferta dotycząca nieruchomości stanowi
zaproszenie do rokowań zgodnie z art. 71 Kodeksu Cywilnego i nie
stanowi oferty określonej w art. 66 i następnych KC.
RE/MAX Invest
ul. Wyzwolenia 1
43-300 Bielsko-Biała
33 821 90 05
Informacja przekazywana przez agenta / właściciela biura uważana
jest za dokładną i rzetelną, ale nie jest gwarantowana i powinna
być niezależnie sprawdzona.
W przypadku tej oferty wynagrodzenie naszego biura pokrywa
właściciel nieruchomości.
Opis oferty zawarty na stronie internetowej sporządzany jest na
podstawie oględzin nieruchomości oraz informacji uzyskanych od
właściciela, może podlegać aktualizacji i nie stanowi oferty
określonej w art. 66 i następnych K.C.
Sprawdź zainteresowanie tym ogłoszeniem
Wyświetlenia
Data dodania
Ostatnio widziany
Obserwujących
Wysłane zapytania
Odsłony telefonu
Powiadom o podobnych ogłoszeniach
Lokalizacja: Ustroń
Kategoria: Nieruchomości » Biura i lokale » Sprzedaż
Cena: od 721500 zł do 976500 zł Powierzchnia : od 383 m2 do 519 m2
Chcę otrzymywać powiadomienia o nowych ofertach
RE/MAX Invest
Konto firmowe
Na Lento.pl od 28 mar 2014
Odpowiada szybko
Strona użytkownika
- Wypromuj ogłoszenie
- Zgłoś naruszenie
- Drukuj ulotkę
- Edytuj/usuń ogłoszenie
- Udostępnij ogłoszenie
- Dodaj na Facebook































