Działka budowlana Ustroń, Jastrzębia
Ustroń Pokaż na mapie ›
Odświeżone: Poniedziałek, 05 Styczeń, 2026 10:12
530 000 zł
261 zł/m2
Szczegóły ogłoszenia
- Kategoria: Działki i grunty / Sprzedaż
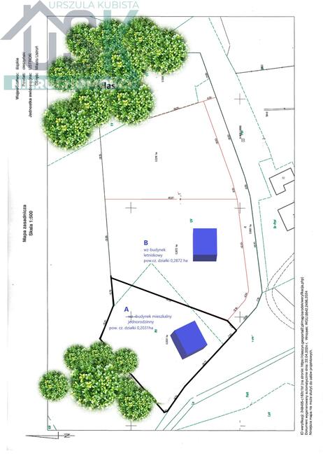
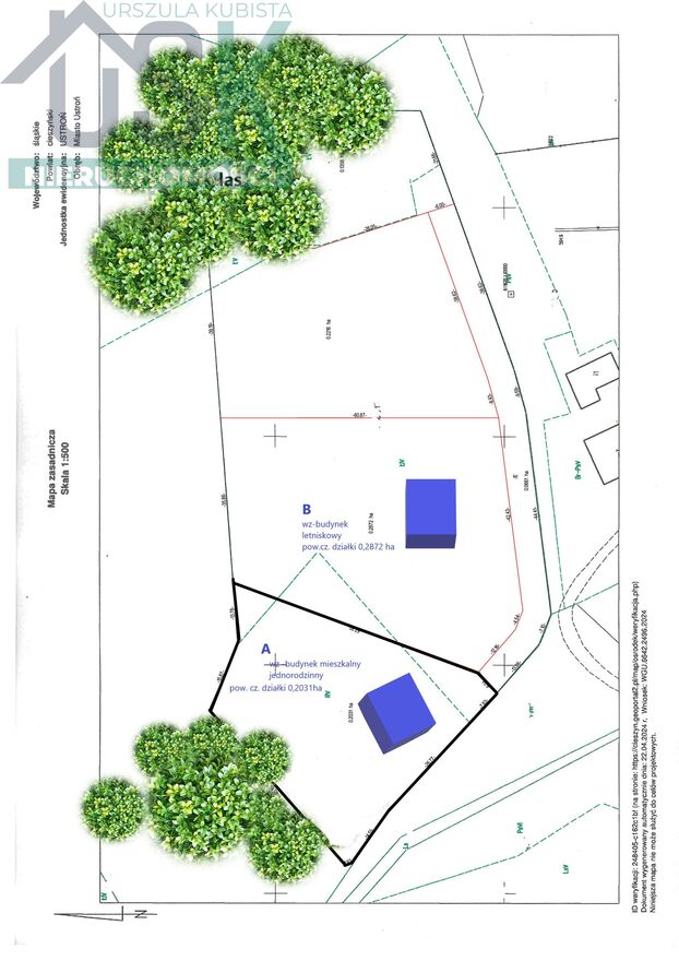
- Pow. działki:2031 m2
- Rodzaj działki:Budowlana
- Sprzedaż:Pośrednik
- Cena: 530 000 zł / 261 zł/m2
Opis oferty
Na sprzedaż oferujemy atrakcyjną działkę zlokalizowaną w malowniczej miejscowości Ustroń w dzielnicy Dobka Ślepa.To idealna propozycja dla osób poszukujących miejsca na budowę wymarzonego domu w otoczeniu natury.
Działka charakteryzuje się nieregularnym kształtem, co daje możliwość kreatywnego podejścia do projektu budowlanego.
Na tym terenie nie ma Miejscowego Planu Zagospodarowania Przestrzennego, ale uzyskano Warunki Zabudowy dla budynku mieszkalnego jednorodzinnego o powierzchni ok. 120 m2.
Nieruchomość jest w trakcie postępowania urzędowego podziału.
Wymiary działki: 45x16x13x57x50
Działka położona blisko szlaków turystycznych /np. Trzy Kopce Wiślane 810 m n.p.m./, tras narciarskich, do licznych atrakcji w miejscowości: Wisła, Brenna, Ustroń.
Grunt bardzo słoneczny, tu słońce operuje od wschodu do zachodu.
MEDIA:
- gaz w sąsiedztwie
- prąd w sąsiedztwie
- woda - studnia
- szambo
DOJAZD:
- asfaltową drogą gminną od ulicy Jastrzębiej
Malowniczy krajobraz, łąki i lasy, spokojne i ciche miejsce wymarzone na odpoczynek.
Zapraszam do kontaktu
Urszula Kubista
USK Nieruchomości
tel. 786 13 13 07
Treść niniejszego ogłoszenia nie stanowi oferty handlowej w rozumieniu Kodeksu Cywilnego.
Oferta wysłana z programu IMO dla biur nieruchomości
Numer oferty: 62
Sprawdź zainteresowanie tym ogłoszeniem
Wyświetlenia
Data dodania
Ostatnio widziany
Obserwujących
Wysłane zapytania
Odsłony telefonu

Urszula Kubista
Konto firmowe
Odpowiada szybko
Strona użytkownika
- Wypromuj ogłoszenie
- Zgłoś naruszenie
- Drukuj ulotkę
- Edytuj/usuń ogłoszenie
- Udostępnij ogłoszenie
- Dodaj na Facebook















